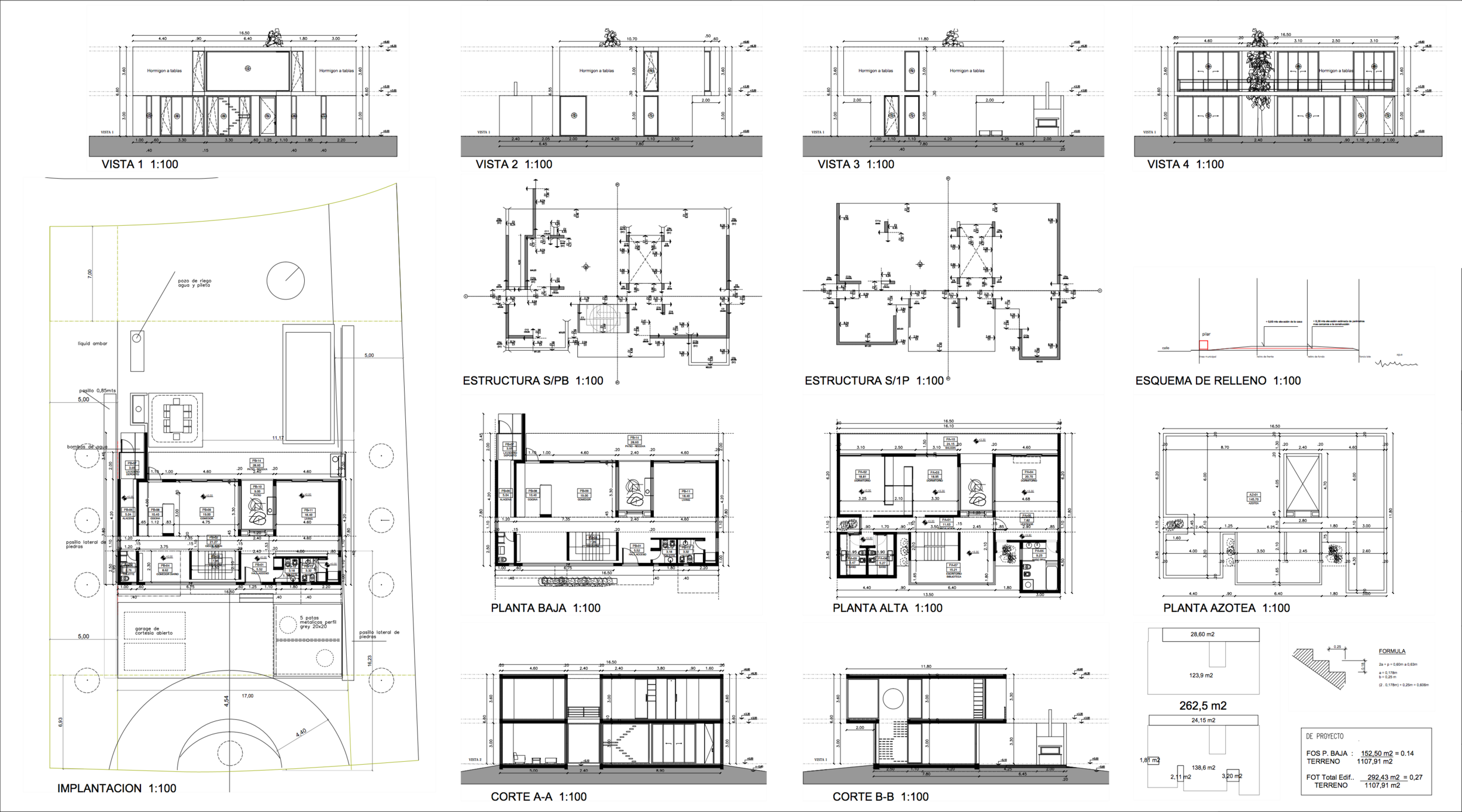
CASA MA casa MA Cannig Pvcia de Bs As . Providencia Country View fullsize View fullsize View fullsize View fullsize View fullsize View fullsize View fullsize